Korszerűsített Prémium Ingatlan, ÜZLET+2LAKÁS

1472 Nyomtatás Ajánlás Facebook

Korszerűsített Prémium Ingatlan - Értéktartó beruházás

Békéscsaba frekventált részén, a belváros közelében kínálunk eladásra egy 279 m²-es, teljeskörűen felújított ingatlant. A kétszintes építmény prémium anyagok felhasználásával, igényesen lett kivitelezve , számos hasznosítási lehetőséggel.

Földszinten: új állapotú, modern megjelenésű üzlethelyiség raktárakkal, irodákkal, szociális helyiségekkel.
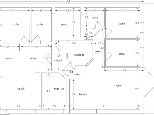
Emeleten: két exkluzív, mai igényeknek megfelelően kialakított lakás.

Főbb jellemzők:
+ A kétszintes ingatlan 1995-ben, tégla falazattal épült, 279m2 hasznos alapterülettel rendelkezik.
+ Tulajdoni lapján lakóház, kereskedelmi egység szerepel. Amennyiben az ingatlant gazdasági társaság vásárolja meg, úgy az ingatlan vételára, a földszinti üzlethelyiségre vonatkozó Áfa tartalommal, vagyis 24MFt-tal emelkedik.
+ 2025-ben az egész épület teljeskörű korszerűsítésen esett át:
újravezetékelt, háromfázisú villamoshálózat, új vízvezetékek, új külső-belső nyílászárók, új burkolatok készültek el. Gyakorlatilag a villanykapcsolóktól a szaniterig minden vadonatúj. Az épület fűtését kettő BOSCH gázkazán biztosítja, külön almérőkkel. Mindhárom épületegység önálló közművekkel rendelkezik. Energiahatékony megoldásokkal, külső hőszigeteléssel, alacsony fenntartási költségeket értek el.
+ Földszinten: 160m2 klimatizált üzlethelyiség, melyben 40m2 vendégtér, raktár, iroda, teakonyha, fürdőszoba, öltöző és 20m2 garázs lett kialakítva.
+ Emeleten két apartman :
1.lakás bruttó 55m2: két szoba ( 10+8,6m2), nyugati tájolású, világos nappali-étkező-konyha, fürdőszoba, külön toalett, közlekedő, előtér.
2.lakás bruttó 55m2: két szoba (10,6+6,3m2), kényelmes, tágas nappali-étkező-konyha, fürdőszoba WC-vel, előtér.
A önálló lakásokhoz közös használatú lépcsőház, folyosó és 7m2 csendes tetőterasz tartozik.
Mindkét lakótér esztétikus, letisztult stílusú, álomszép konyhabútorokkal, beépített szekrényekkel és trendi burkolatokkal készült el.
+ Az épület kiváló lokációval rendelkezik, könnyen megközelíthető. Közelben számos parkolási lehetőség adott.
+ Az ingatlan problémamentes, rövid idő alatt birtokba vehető.

Ez egy valóban különleges ajánlat azok számára, akik egy exkluzív kivitelezésű, alacsony fenntartású, duplakomfortos családi házat, esetleg üzleti ingatlant - két kiadható lakással keresnek Békéscsaba legjobb részén.
Amennyiben érdeklődik az ingatlan iránt, kérdései vannak, szeretné megtekinteni, kérem, keressen elérhetőségeimen.

Tóth Brigitta
PRÉMIUM

Tóth Brigitta

5 éve a Városi Ingatlaniroda tagja
Ingatlanértékesítő
Békéscsaba
+36 (30) 956 3560
Észrevétel a hirdetéssel kapcsolatban
Egy ingatlanos naplója