Kedvező árú, 68 nm-es vásártéri lakás

1422 Nyomtatás Ajánlás Facebook

Ha igazán kényelmes otthonra vágyik, akkor ezt kereste!
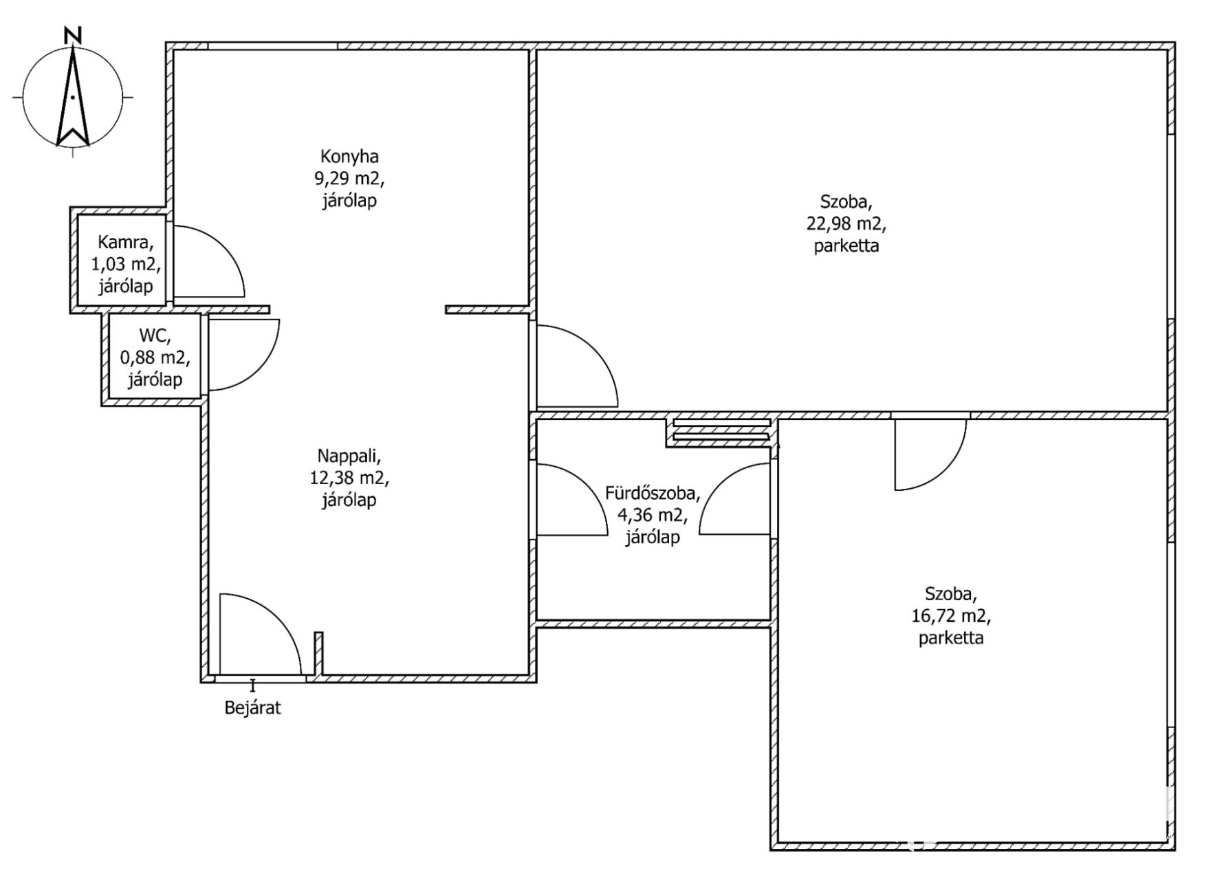
Eladó Salgótarjánban a Vásártéren, egy kétszobás, tágas nappalival és amerikai konyhával rendelkező lakás.
Ide nem kell sok lépcsőt mászva cipekedni, mert ez az otthon a földszinten található. Különösen kedvező időseknek, és kisgyermekes fiataloknak!
Közel a városközponthoz, ezért közel mindenhez, legyen az iskola, óvoda, hivatal, orvosi rendelő, gyógyszertár, vagy üzlet.
A távolsági buszmegálló alig hatvan méterre van a bejárattól, így akár budapesti munkahellyel rendelkezőknek is kedvező lakáslehetőséget biztosít, elérhető áron.
Az ingatlan esztétikai felújításra szorul, mert egy ideje nem lakott, de nem is olyan rég még jobb napokat látott. Ennek bizonyítékai a többszörös szigetelésű, tükörfóliás, dekoratív műanyag ablakok, az igényes bejárati ajtó, a jó minőségű padlóburkoló lapok is.
A fürdőszoba és a WC külön helyiségben található. A fűtést gázkonvektorok biztosítják.
Az átfolyós rendszerű gázüzemű vízmelegítő azonnal előállítja a melegvizet, tetszés szerinti mennyiségben, nem kell várni a víz felmelegedésére, bármennyi rendelkezésre áll.
A lépcsőház tiszta, kulturált, kaputelefonos beléptetőrendszerrel védett.
A lakóközösség jó, segítőkész, a lakóövezet nyugodt, és biztonságos.
Ha felkeltette az érdeklődését ez a lakás, hívjon a +36 70 423 1304-es telefonszámon!

Butkai Ottó
PRÉMIUM

Butkai Ottó

Ingatlanértékesítő, Karrierigazgató
Salgótarján
+36 (70) 423 1304
Észrevétel a hirdetéssel kapcsolatban
Egy ingatlanos naplója